info@immo-bahr.de 0451 / 88 18 46 68 0175 / 5 67 02 07 Fackenburger Allee 84 · 23554 Lübeck

RESERVIERT: Einziehen & wohlfühlen: Farbenfrohes Reiheneckhaus mit viel Licht und Platz!

Deutschland

Zimmer-Icon Zimmer 4
Schlafzimmer-Icon Schlafzimmer 3
Badezimmer-Icon Badezimmer 1
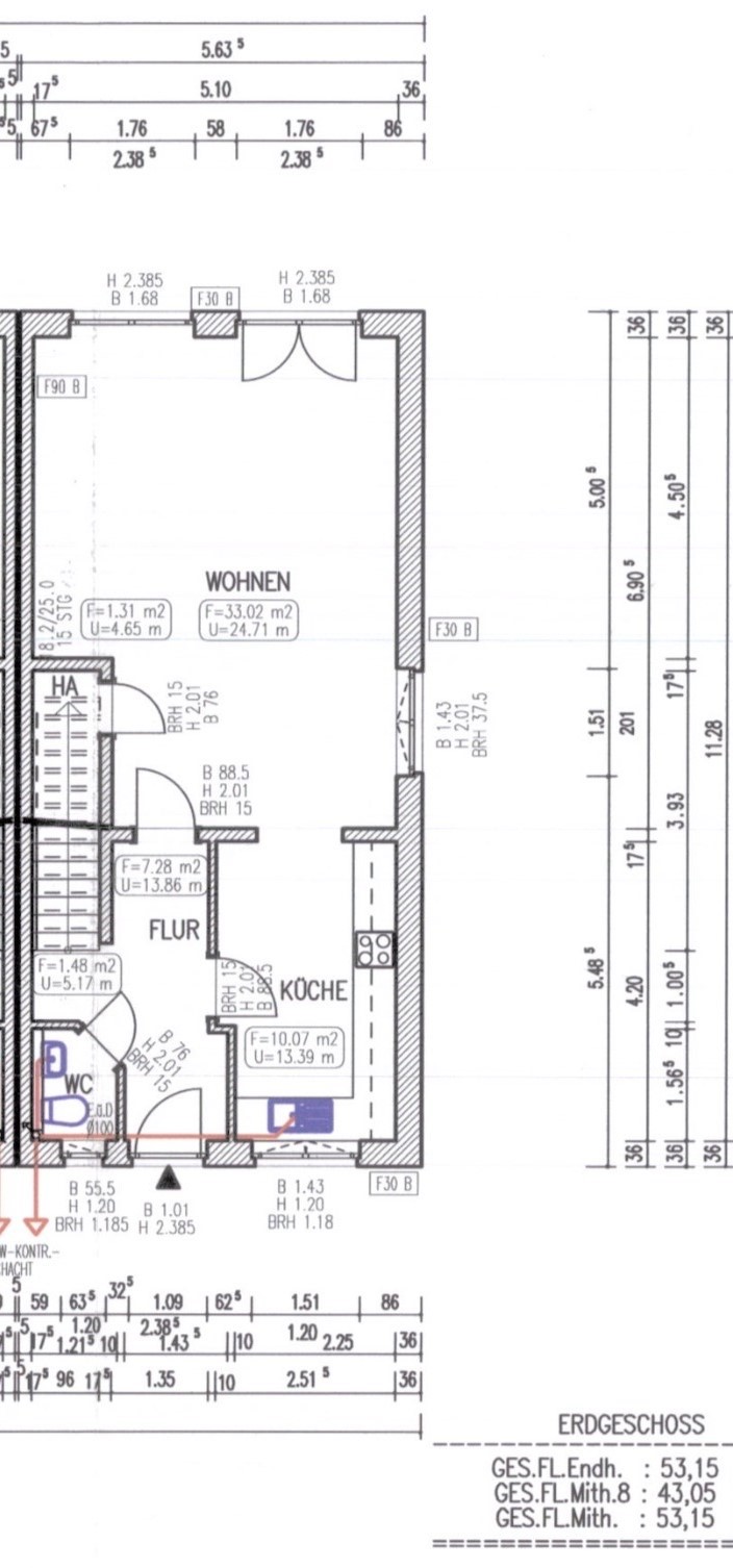
Wohnfläche ca.-Icon Wohnfläche ca. 94 m²
Grundstück ca.-Icon Grundstück ca. 203 m²
Preis-Icon Kaufpreis 499.000,00 EUR

360°-Ansichten

Was Sie über dieses Objekt wissen sollten

Objektbeschreibung

Dieses gepflegte farbenfrohe Reiheneckhaus aus dem Jahr 2007 bietet auf einer Wohnfläche von ca. 95m² ausreichend Platz für individuelles Wohnen. Mit vier Zimmern, darunter drei Schlafzimmer, eignet es sich optimal für kleine Familien oder Paare. Ein modernes Tageslichtbad mit Dusche und Badewanne rundet den Wohnkomfort ab.
Die wertige Einbauküche im Landhausstil ergänzt den skandinavischen Charakter des Hauses, ebenso der stilvolle Parkettboden im Wohnbereich.
Ein praktischer Wasch- und Trockenraum mit Lagerfläche ist im OG ebenfalls vorhanden.
Das Grundstück umfasst 203 m² und bietet mit zwei überdachten, windgeschützten Terrassen zusätzlichen Raum für Erholung im Freien. Ein kleiner Schuppen gehört ebenfalls zum Außenbereich.

Ausstattung und Besonderheiten dieses Objektes

Fußbodenheizung in Flur und Küche

Lage und Umfeld dieser Immobilie

Der Hochschulstadtteil befindet sich im Süden Lübecks und grenzt nach Osten unmittelbar an das Gelände der Universität sowie nach Norden hin an die Technische Hochschule. Die Bundesstraße 207 begrenzt das Gebiet nach Westen. Nach Süden bildet der Lübecker Landgraben als Landschaftsschutzgebiet die natürliche Grenze des ab 2004 errichteten Wohnviertels.
Entgegen seinem offiziellen Namen ist der Hochschulstadtteil kein eigener Stadtteil, sondern gehört als Bestandteil des Stadtbezirks Strecknitz zum flächenmäßig größten Lübecker Stadtteil Lübeck-St. Jürgen.
Zentrum des Hochschulstadtteils ist der langgestreckte, in Ost-West-Richtung verlaufende Carlebach-Park. Der Park, der den Hochschulstadtteil mit dem Universitätscampus verbindet, wurde am 22. August 2005 der Öffentlichkeit übergeben. An seinem westlichen Ende befindet sich das Stadtteilzentrum mit vielen infrastrukturellen Einrichtungen wie der Paul-Klee-Grundschule, einem Kindergarten, Ärzten, Polizeistation St. Jürgen und einem im Oktober 2019 eingeweihten evangelischen Gemeindehaus, dem St. Lukas Haus.

Die Verkehrsinfrastruktur des Hochschulstadtteils verfügt über ein gut ausgebautes Fahrbahnnetz, so dass alle wichtigen Punkte schnell und bequem zu erreichen. Es steht eine große Anzahl Parkplätze zur Verfügung und es werden Brach- und Grünflächen vom ruhenden Verkehr in Beschlag genommen. Die zentralisiert zusammengefassten Einkaufsmöglichkeiten verfügen über ein Parkhaus und direkten Anschluss an die Bundesstraße B 207.
Am Haltepunkt Lübeck-Hochschulstadtteil halten stündlich Regionalzüge zum Lübecker Hauptbahnhof und oft über Plön weiter nach Kiel sowie über Lübeck-Flughafen, Ratzeburg, Mölln, Büchen und Lauenburg nach Lüneburg.

Die richtige Immobilie war noch nicht dabei?

Wir senden Ihnen passende Angebote per E-Mail!

Kontaktieren Sie uns!

Exposé drucken

Finanzierungsrechner

Unsere Partner